
Albuquerque, New Mexico
Type: Turnkey Dispensary
Size: 378 sqft.
- Full description below -
Albuquerque, New Mexico
🌿 Turnkey Boutique Dispensary | Premier Nob Hill Retail Corridor | Move-In Ready | $250,000
📊 Investment Highlights
Asking Price: $250,000
Property Type: Mixed Use / Office / Retail
Sub Type: Storefront / Traditional Office / Cannabis Dispensary / Boutique Retail
Building Size: ±378 SF
Net Rentable Area: ±378 SF
Price per SF: $661.38
Tenancy: Vacant
Units: 1
Year Built: 1950
Year Renovated: 2023
Stories: 1
Zoning: MX-L (Mixed Use – Low Intensity)
Parking: 3 Dedicated Spaces
Broker Co-Op: Yes
🧾 Executive Summary
Positioned in the heart of Albuquerque’s iconic Nob Hill district, this turnkey 378 SF boutique retail or cannabis dispensary property offers a rare opportunity to own real estate in one of the city’s most sought-after walkable commercial corridors.
Located just steps from the busy Central Avenue and Carlisle Blvd intersection, this recently renovated, move-in-ready space provides unbeatable visibility and accessibility within one of Albuquerque’s highest-foot-traffic areas—just minutes from the University of New Mexico (UNM).
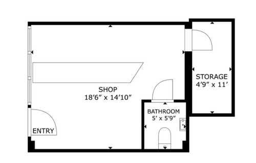
The property includes a 268 SF open showroom with a built-in retail display case, one ADA-accessible restroom, and a secure closet/storage area. Enhanced with roll-up security doors, a surveillance camera system, and modern lighting, this property is ready for immediate occupancy—perfect for boutique retailers, professional offices, or licensed cannabis operators.
Situated on a 0.02-acre parcel, the site includes three on-site parking spaces, lighted building signage, and direct ingress/egress from the east property line for easy customer flow. Zoned MX-L, this flexible mixed-use designation supports a variety of commercial and specialty retail uses, including cannabis, professional services, creative offices, and small-format food or wellness concepts.
With 222,095 residents within five miles, 114,911 daytime employees, and an average household income of $69,924, this Nob Hill location sits at the intersection of culture, commerce, and consistent consumer activity—just 400 feet from Central & Carlisle’s 18,880 vehicles per day.
🏢 Property Overview
Building Size: ±378 SF
Showroom Area: ±268 SF
Lot Size: ±0.02 Acres
Configuration: Open retail area, restroom, storage/closet space
Year Built / Renovated: 1950 / 2023
Zoning: MX-L (Mixed Use – Low Intensity; cannabis permitted)
Parking: 3 On-Site Spaces
Ingress/Egress: East property line access
Utilities: Water, sewer, gas, and electricity connected
Visibility: 400 ft from Central & Carlisle Intersection (18,880 VPD)
Security: Roll-up doors, camera system, secure entry
Signage: Lighted building-mounted signage
📍 Location Highlights
District: Nob Hill / UNM North Corridor
Intersection: Central Avenue & Carlisle Blvd SE
Nearby Anchors: Starbucks, Sprouts Farmers Market, Flying Star Café, Urban Outfitters, Satellite Coffee, Local Breweries
Accessibility: 5 minutes to I-25, 7 minutes to Downtown, 10 minutes to Albuquerque International Sunport
Demographics (5-Mile Radius):
Population: 222,095
Daytime Employment: 114,911
Average Household Income: $69,924
🌿 Property Advantages
✅ Fully Renovated and Move-In Ready
🌆 High-Traffic Nob Hill Corridor – Pedestrian & Vehicle Exposure
💡 Lighted Building Signage & Modern Security System
🚗 On-Site Parking for 3 Vehicles
🧱 Efficient, Low-Maintenance Building with Modern Finishes
📍 Ideal for Cannabis Retail, Boutique Shop, or Professional Office
💡 Summary of Opportunity
This Nob Hill retail storefront represents an exceptional owner-user or investor opportunity in one of Albuquerque’s most dynamic submarkets. With modern renovations, prime visibility, flexible zoning, and immediate readiness for occupancy, it’s ideal for operators seeking a compact, high-impact footprint in a district known for culture, energy, and constant consumer engagement.
Offered Exclusively by Licensed Agents / Brokers
Listing #9033







